Recursos materiais
Na seguinte táboa inclúense as aulas dispoñibles para as clases teóricas, cada unha con capacidade para 60 alumnos e equipadas con pizarra, pantalla de proxección, ordenador, canón de video, retroproxector e unha camilla hidráulica.
A aula de informática ten capacidade para 24 persoas. Está equipada con 21 ordenadores, 2 impresoras láser e escáner.
A aula de Audiovisuais conta con capacidade para 26 alumnos. Está equipada con televisión, equipo de video, dvd, dvdgrabador, proxector de diapositivas e proxector de opacos.
| Nome | Ubicación | Capacidade |
|---|---|---|
| Aula 1 - Susana Rodríguez Gacio | 1º Andar | 60 postos |
| Aula 2 - Teresa Portela Rivas | 1º Andar | 60 postos |
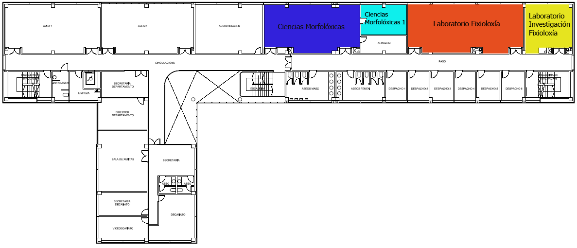
| Aula 4 | 1º Andar | 26 postos |
| Aula Informática | 2º Andar | 24 postos |
Sala de Xuntas
A Facultade de Fisioterapia dispón dunha sala específica para reunión, ubicada no primeiro andar e dotada de mobiliario e equipo de proxección. A sala de xuntas ten unha capacidade de ata 25 persoas.
Despachos para equipo directivo
A Facultade de Fisioterapia conta con 3 despachos ubicados no primeiro andar destinados ao equipo decanal do centro.
Despachos de profesores
Os profesores con docencia na Titulación de Grao en Fisioterapia dispoñen de ata un total de 14 despachos ubicados en distintas dependencias do centro.

A sala de estudos ten capacidade para 54 estudantes.

A Biblioteca central do Campus de Pontevedra ofrece os seguintes servizos:
- Sala de Lectura
- Dúas cabinas audiovisuais
- Seis ordenadores de información
- Rede WIFI
Sala de libre disposición para o estudantado
Esta sala, está ubicada na planta baixa e ten capacidade para 16 persoas.
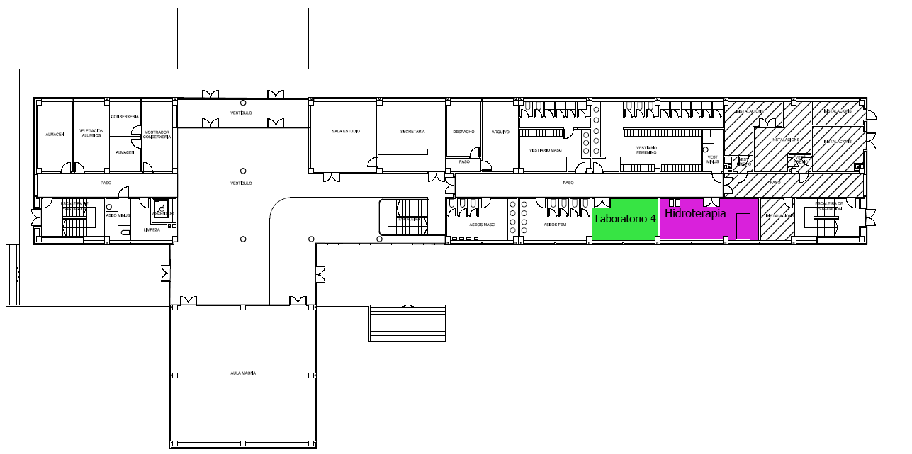
Aula Magna
A Aula Magna, situada na planta baixa e con capacidade para 135 persoas, é utilizada para celebrar actos académicos e protocolarios, conferencias,…
Servizos xerais
Conexión sen fíos
O edificio da facultade dispón de conexión sen fíos á rede da universidade e, a través dela, a Internet. Todos os membros da comunidade universitaria teñen acceso a este servizo mediante clave vinculada á súa conta de correo persoal proporcionada pola universidade.
Recursos docentes en rede
Como apoio á actividade docente presencial, a Universidad de Vigo pon a disposición do profesorado a plataforma informática MooVi con recursos en liña destinados á teleformación. Tamén conta cun acceso directo ás aulas do Campus Remoto para recibir clases e ao despacho virtual de cada docente para as titorías.
Servizo de cafetería e restauración
O centro non dispón de servizo de cafetería nin restauración; para suplir esta necesidade ubicaronse na planta baixa e na primeira planta, maquinas de café, bebida e alimentos para toda a comunidade. Por outra banda, a 100 metros da facultade atopanse dous postos de cafetería e restauración central do campus xestionados por empresas externas.


